楼风信信息交流群_微信二维码叫小妹150_一品楼 论坛 首页_南宁高端喝茶联系方式

联系人:陆红男
电话:0510-85958087  85958089
传真:0510-85957981
手机:13961813781
联系人:薛佳
手机:13912360722
地址:江苏省无锡市滨湖区南湖中路
邮编:214128
http://www.xfnvaqz.cn
E-Mail:mhgl_1954@163.com
rcd

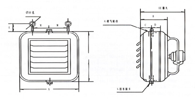
【L型横式单位散热器

  本散热器系足由外径Φ16毫米,壁厚1毫米紫铜管及10×0.2毫米紫铜带构成,片距为3.2毫米,后面由三叶轴流风扇通风。同一型号暖风机风扇的转速有三种,是用双速电动而获得,其风速、流量因不同转速而亦不相同。表列静度足故热器在使用时发出的噪音量(dB)的大小,噪音越小,则静度愈高。“A”级静度最优,“B”级则次,“C”级静度再次之,“D”级静度适用工厂、仓库等,噪音量在80—85.5分贝。

横式单位散热器型号说明:本散热器是用三组数字字母表示。
第一组 表示散热量千位数(大卡/时)。
第二组 字母表示导风叶的型式
第三组 表示散热器排管单排(一排)、双排(二排)
例如:4L2型即表示该散热器具有4000千卡/时的散热量,导风叶为“L”型,散热排管为双排(二排)

L型横式单位散热器补充型号基本参数见下表:
型号
A
B
C
D
E
进出水管
内螺纹寸G
M
EE
最大
净重公斤
单/双
4L2
9L2
6L1
520
230
75
62
70
1 1/4”
170
575
45/49
11L2
13L2
8L1
9L1
520
230
75
62
70
1 1/4”
170
575
15L2
11L1
595
230
75
62
70
1 1/2”
205
575
53/59
18L2
13L1
595
230
75
62
70
1 1/2”
205
575
21L2
16L1
595
230
75
62
70
1 1/2”
205
575
29L2
19L1
700
315
85
125
70
1 1/2”
205
670
68/77
35L2
23L1
700
315
85
125
70
1 1/2”
205
670
53L2
33L1
795
315
85
125
70
2”
308
680
74/85
65L2
41L1
900
315
85
125
70
2”
360
680
102/119
71L2
44L1
900
315
85
125
70
2”
360
680
88L2
53L1
1045
315
85
125
70
2 1/2”
432
700
114/156
99L2
59L1
1045
315
85
125
70
2 1/2”
432
700
版权所有:无锡市美华锅炉配件制造有限公司 | 查看订单 | 企业邮局
地址:江苏省无锡市滨湖区南湖中路 | 电话:0510-85958087  85958089 | 传真:0510-85957981
主站蜘蛛池模板: 祁阳县| 广南县| 文安县| 孝昌县| 漾濞| 彭山县| 剑阁县| 无为县| 北海市| 武平县| 九龙城区| 新蔡县| 八宿县| 黄龙县| 榆社县| 奈曼旗| 忻州市| 儋州市| 瑞安市| 井陉县| 乌拉特前旗| 曲水县| 如皋市| 彭阳县| 南陵县| 西盟| 广东省| 遂昌县| 定远县| 西畴县| 新泰市| 灵璧县| 和林格尔县| 乐平市| 蒙城县| 房山区| 稻城县| 平山县| 清徐县| 宁武县| 阿勒泰市|